Bamboehuis

Recreatiewoning in Boijl, Friesland


Momenteel bouw ik in Boijl aan een bijzondere recreatiewoning. Het bouwen van deze woning is een uitdaging omdat ik de woning geheel zelf bouw en voor een groot deel daarvoor geperst bamboe gebruik. Het zelf bouwen brengt beperkingen met zich mee omdat ik niet alles kan en niet overal gereedschap voor heb maar zorgt er ook voor dat ik af kan wijken van beperkende conventies in de bouw. En die zijn er veel. Particuliere- en recreatiewoningen hebben zelden een aansprekende constructie met esthetische kwaliteit. Meestal wordt gekozen voor houtskeletbouw of dragend metselwerk en wordt binnen alles in de afbouwfase met stucwerk als een mantel der liefde afgedekt. Bruikbaarheid, rationaliteit en conventies in bouwsystematiek, afwerking, materiaaltoepassing en verschijningsvorm zijn doorslaggevend, poëzie speelt zelden een rol. Spannende, inspirerende, tot de verbeelding sprekende constructies en bouwvormen komen nauwelijks voor.

Bamboe constructie
Het zelf bouwen van de woning opende de mogelijkheid een bijzondere draagstructuur van geperst bamboe te maken. Door anderen had ik dit waarschijnlijk nooit kunnen laten maken omdat rekenregels voor geperst bamboe als constructiemateriaal op dat moment ontbraken, daardoor geen partij de verantwoordelijkheid op zich had willen nemen de constructie te maken en als dit wel gelukt was het te bewerkelijk en derhalve te kostbaar geweest zou zijn. De constructie vergt bijzondere aandacht. Het materiaal is ontzettend hard en zwaar. Het kan uitstekend hoge drukkrachten opvangen. Maar het materiaal is minder geschikt voor het opvangen van trekkrachten. Met het ontwerp van de constructie is daar rekening mee gehouden, de constructie is zodanig vormgegeven dat hoofdzakelijk drukkrachten ontstaan. De 160 kilo zware spanten van geperst bamboe zijn in onderdelen geprefabriceerd, op locatie liggend in elkaar gezet met enkel boutverbindingen en met hulp van buren (als die aanwezig waren), vrienden (als die mee waren) of een lier opgericht.

spant
Gevelbekleding
De gevelbekleding van Bamboe is geheel zichtbaar geschroefd met een zorgvuldig patroon voor de schroeven. Deels uit oogpunt van circulariteit, deels omdat het gewoon mooi is. Dat lijkt wellicht een onbeduidend detail, maar zelfs een wat oudere buurvrouw viel het op en sprak haar waardering daarover uit! Een mooier compliment kan je eigenlijk niet krijgen.

gevel
Binnenwanden
Ook de binnenwanden van de woning worden afgewerkt met platen van geperst bamboe die zichtbaar geschroefd bevestigd worden. Circulair omdat de platen eenvoudig te demonteren zijn en kunnen worden hergebruikt. Daarnaast is de woning modulair opgezet op een stramien van 1,22 m zodat zoveel mogelijk platen van 122x244 gebruikt kunnen worden en het materiaalverlies beperkt blijft. De afwerking met bamboe platen is ook flexibel omdat installaties achter deze platen (waterleidingen en elektra) altijd bereikbaar blijven en aangepast kunnen worden. En natuurlijk levert toepassing van deze afwerking ook een prachtig beeld en een unieke sfeer op.

binnenwanden
Mensen met een beperking
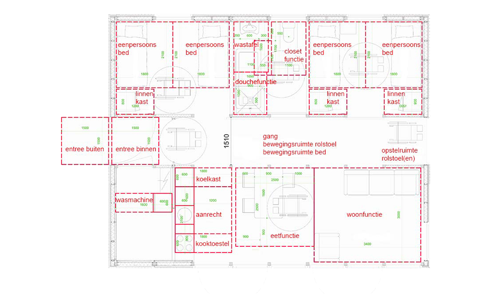
Een belangrijk uitgangspunt is dat het ontwerp afgestemd is op gebruik door mensen met een fysieke beperking. Daarbij gaat het in eerste instantie niet alleen om noodzakelijke maatregelen als drempeloos, brede deuren, muurbeugels e.d. Maar het gebruik door mensen met een fysieke beperking is primair het uitgangspunt voor de opzet en organisatie van de woning. Voor het gebruik van de woning door een diverse groep van mensen met een fysieke beperking is het vooral van belang dat de woning een heldere, overzichtelijke indeling heeft met voldoende overmaat.

plattegrond Brede middengang
De woning is georganiseerd rond een centrale 1,5 meter brede gang die over de hele diepte van de woning loopt. De ruime slaapkamers, en badkamer liggen aan de noordkant van deze gang, de woonkamer aan de zuidkant staat in open verbinding met deze gang en kan straks desgewenst (voor privacy, of het vasthouden van warmte) afgescheiden worden door een gordijn. Deze opbouw is ook buiten in de woning zichtbaar. De centrale middengang is plat afgedekt en heeft aan beiden uiteinden grote glazen gevels waarvan één gevormd wordt door een grote taatsdeur die de toegang tot de woning vormt. Aan weerszijden van de centrale gang heeft de woning een flauw hellend geisoleerd dak dat is afgedekt met een lichte stalen dakplaat met een flink overstek.

De brede gang zorgt ervoor dat er veel bewegingsruimte is voor mensen in een rolstoel of met een rollator en er ook voldoende opstelruimte is voor hulpmiddelen. De modulaire opzet, brede doorgangen en open verbinding van de woonkamer met de gang maakt het mogelijk om een bed vanuit een van de slaapkamers de woonkamer in te rijden.

binnengang
Slaapkamers en badkamer
Ook de slaapkamers en de badkamer hebben overmaat en zijn groot genoeg om met een rolstoel of rollator te betreden. Een kleine derde kamer is bedacht als bergruimte maar kan desgewenst ook gebruikt worden als extra slaapkamer, bijvoorbeeld voor een hulpverlener.

De tuin
Tot slot zal ook het ruime perceel van 700 m2 door mij ingericht worden en zoveel geschikt gemaakt worden voor mensen met een fysieke beperking. Maar dat is een project op zichzelf!

tuin

Locatie: Boijl, Friesland
Grootte woning: 80 m2
Constructiemethode: Pressed bamboo
Gevelmateriaal: Pressed bamboo